• DOBD
  • ABOUT
  • INTERIOR DESIGN + ART DIRECTION
DANIELLE O'BRIEN
  • DOBD
  • ABOUT
  • INTERIOR DESIGN + ART DIRECTION

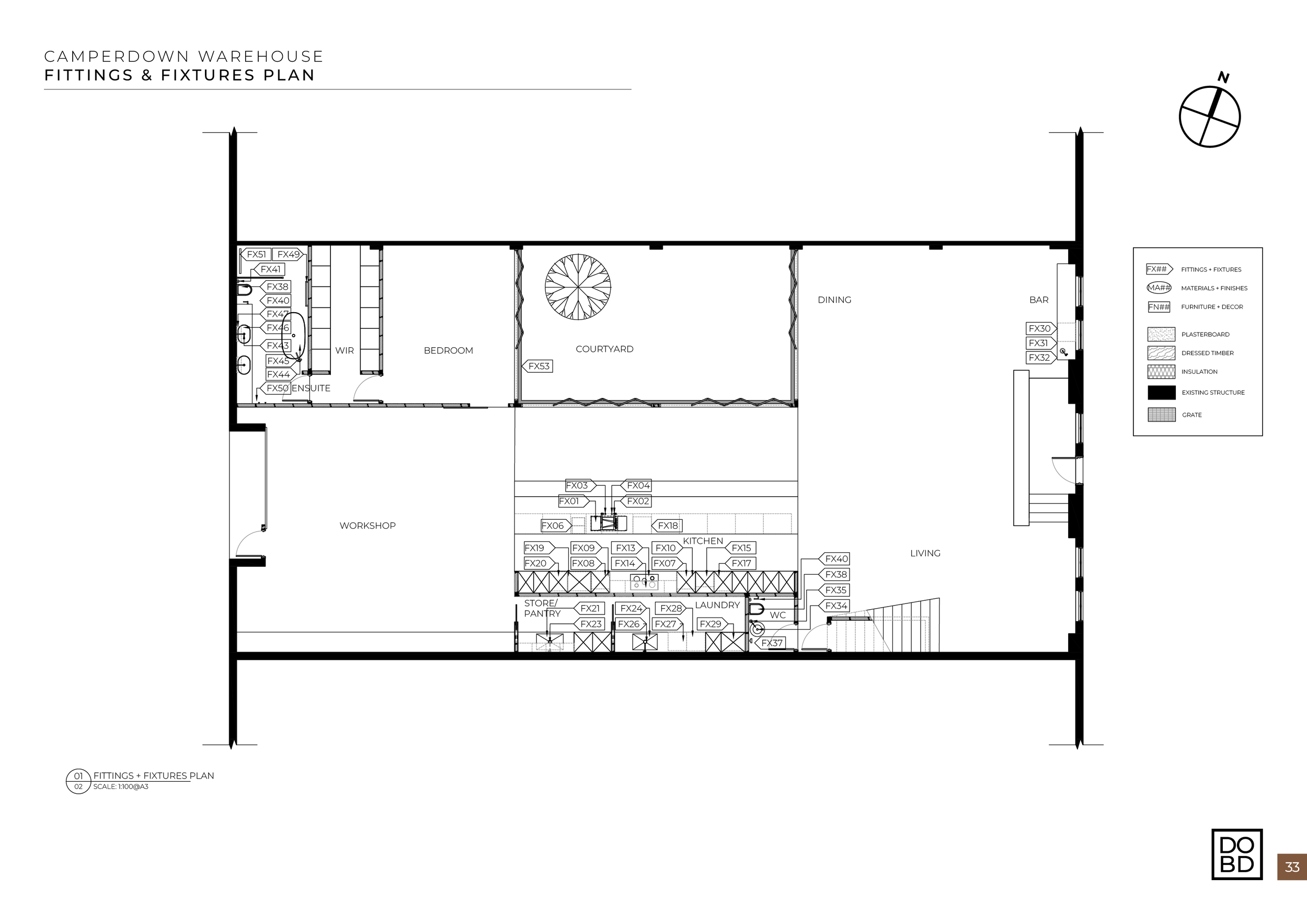
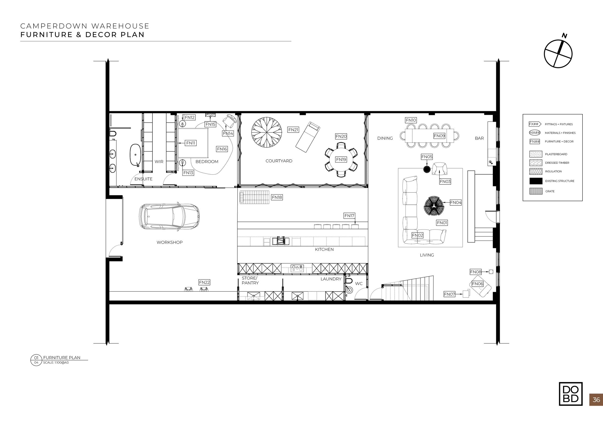
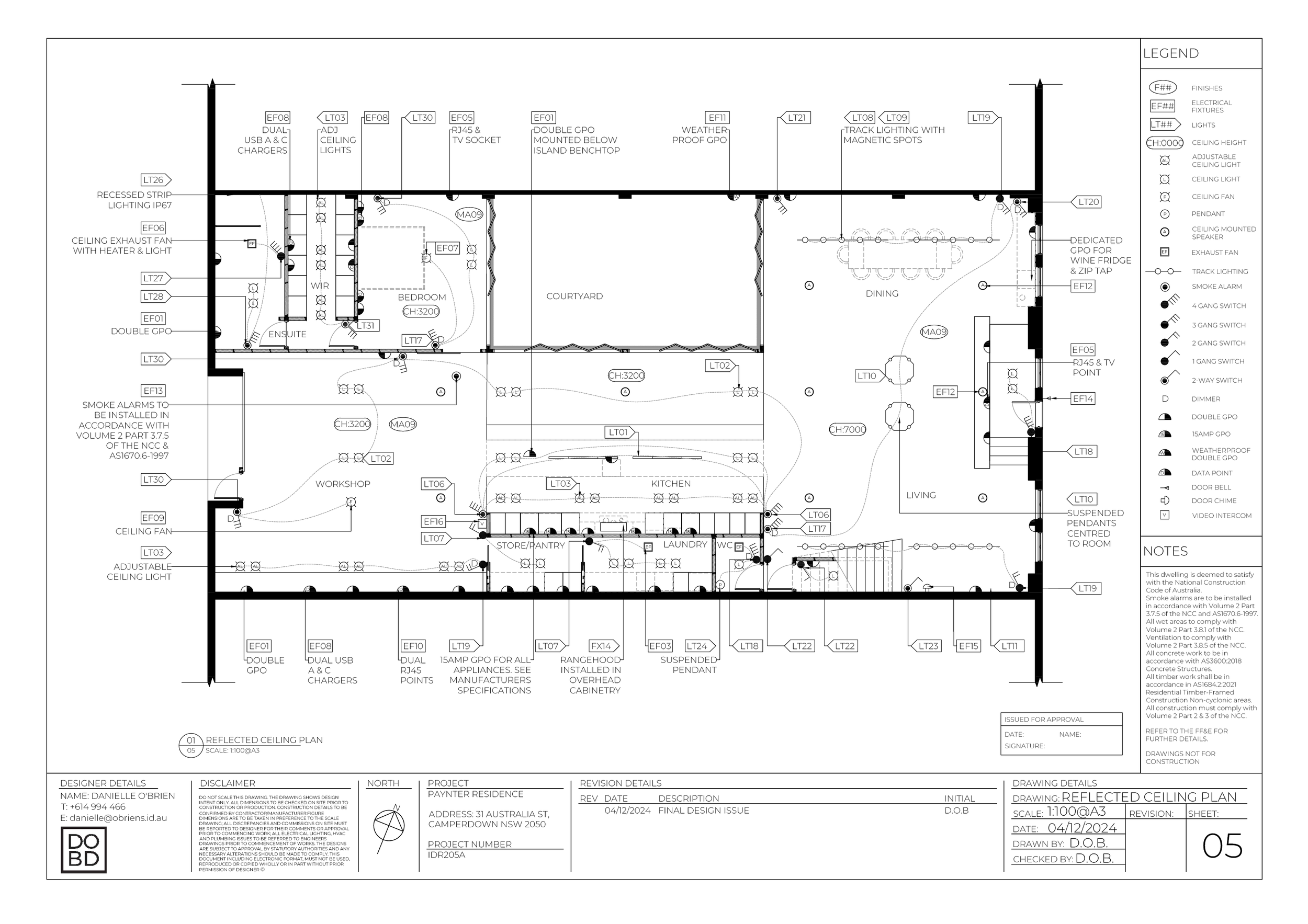
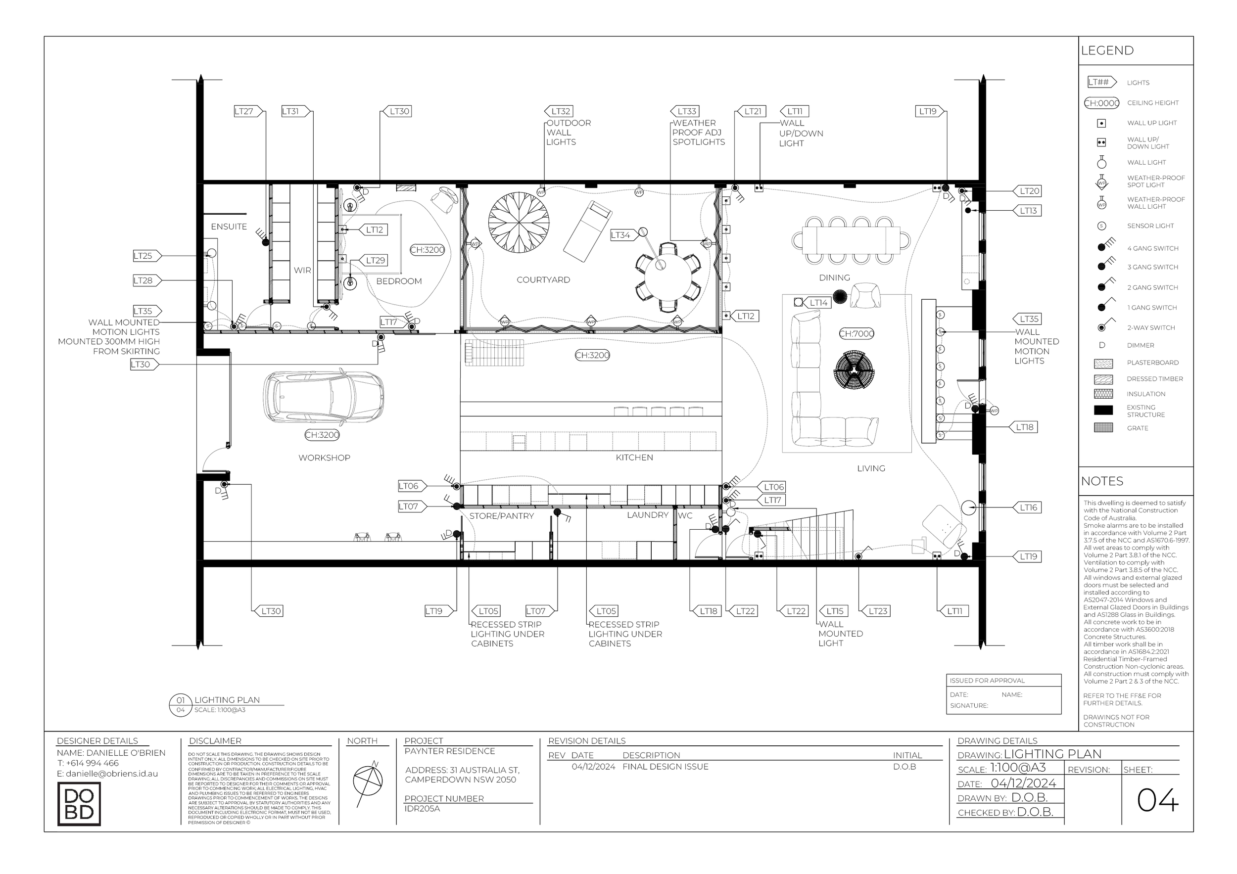
CAMPERDOWN WAREHOUSE

SYDNEY, NEW SOUTH WALES

Designed as a sophisticated city residence for a professional couple, this warehouse conversion offers a deliberate contrast to their country family home. Drawing from the surrounding red-brick vernacular and the inherent character of the warehouse shell, the material palette is bold yet cultivated. Expansive white walls provide a canvas for layered colour, pattern and texture, transforming scale into intimacy. Vibrant tones, inspired by the owners’ art collection, soften the industrial framework, while an eclectic mix of design icons and contemporary pieces reflects a life well collected. Together, these elements create a sense of timeless harmony which is both personal and distinctly urban.

SOFTWARE
INDESIGN
PHOTOSHOP
AUTOCAD
EXCEL

Cover image.png
Camperdown16.png
Camperdown.png
Camperdown2.png
Camperdown3.png
Camperdown4.png
Camperdown5.png
Camperdown6.png
Camperdown7.png
Camperdown8.png
Camperdown9.png
Camperdown10.png
Camperdown11.png
Camperdown13.png
Camperdown14.png
Camperdown17.png
Camperdown18.png